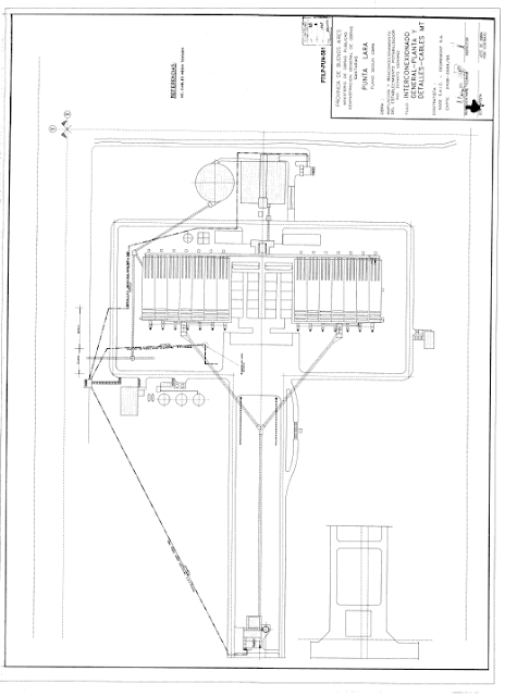
Obra de TOMA SUPERFICIAL y CONDUCTO de TOMA
Computo y Presupuesto
de Planta Potabilizadora Ing. Donati Gerardia
Localidad de Punta Lara. Pcia de Bs As
Argentina
La Planta Potabilizadora Ing. Donato Gerardi recibe el Caudal de Agua Cruda a tratar proveniente del Rio de La Plata. El caudal que oscila entre 8000 y 13.000 m3/h llega por gravedad a través de un ACUEDUCTO de AGUA CRUDA - conducto de toma - de Hormigón de 2 metros de sección.
La TOMA de AGUA es de tipo SUPERFICIAL, mediante un CANAL de TOMA compuesto por dos murallones.Pertenecientes a los Clubes de Pesca ,La Plata al Norte y Rio de la Plata,al sur. Dichos murallones tenían una longitud de 700 y pico de metro y posteriormente se extendieron con rocas hasta los 900 y pico de metros.Y hasta cuando trabaje en la Planta era zona custodiada por la Prefectura Naval.
En el año 1995 se realizo un estudio muy completo para profundizar Rio adentro los mismos por las cuestiones de bajantes. En ese tiempo se obtuvieron resultados negativos, es decir , aguas de menor calidad que las captadas a esa altura.
También un evento importante en la década del 90 fue el derrame un petroleo que ingreso a la zona de toma. Si la toma hubiese sido en Torres como las de AYSA, hubiese ingresado a Planta.Asi destruir filtros y proceso consecuentemente semanas sin Producción.Gracias a la toma superficial, donde el agua ingresa por debajo, flotando el petroleo. Y se lo retuvo de la zona critica mediante un sistema de flotantes con tensores y redes.
Pero esta publicación no tiene por objetivo entrar en temas ingenieriles sino mostrarte unas fotos de la Toma Actual y los Cálculos Históricos de sus Cómputo y Presupuesto. Asi como en el 70 , también en los 80 y parte de comienzos de 90 se seguía la misma metodología, en las Oficinas Técnicas hasta culminar en el expediente final.
Luego comenzaría por fines de los 80 la Impresora de punto en negro,toda una maravilla y pocos las computadoras de pantalla 13" en blanco y negro.Y las caras y primeras notebook, solo para pudientes.
Algo que rescate sobre Cuencas de Aporte y Calidad del Estudio que mencione de la década del 90.Arroyo La Guardia, Canal Argentino, Canal Acceso Puerto La Plata
Obra de Toma y Conducto de Agua Cruda
El Director Técnico de AGOSBA que figura en Nota fue uno de los tantos excelente profesores que tuve en la UNLP Ingeniería, - La Plata, Pcia de Bs As -, en la asignatura Hidráulica , allá lejos por el año 1987.
Por último, unos Datos Históricos de Producción de aquellos años, de la Oficina de Producción de Planta Potabilizadora.
Hasta el año 1997 aproximadamente, la Planta Potabilizadora contaba segun Organigrama con su Jefe de Mantenimiento y Jefe de Logistica .En ésta última se llevaba diariamente la Produccion de Planta, Filtros, Lavado de Decantadores, Limpieza de Canales, Planificacion y Diagramación de Operativos en conjunto.
Gracias por vuestra atención